Schmierung und Kühlung

Letzte

Navigation durch das Thema

Nächste

Bei Verbrennungsmotoren ist die Schmierung und dessen Kühlung eine umfangreiche Sache. Die sich im inneren schnell bewegenden Teile tun das in den meisten Fällen in Gleitlagern. Zudem sind wegen der grossen Hitze keine Einlagen aus Weissmetall möglich. In der Folge musste man diese Mängel mit einer optimal arbeitenden Schmierung eliminieren. Sie sehen, dass es sich lohnt, die Schmierung des Dieselmotors etwas näher zu betrachten.

Die sich im Dieselmotor sehr schnell bewegenden Teile, wie Kolben und Kurbelwelle erzeugten grosse Reibungswerte. Ergänzt mit der Wärme wären sehr schnell grosse Schäden entstanden. Daher war es wichtig, dass der Dieselmotor mit einer guten und vor allem automatisch funktionierenden Schmierung ausgerüstet wurde. Es war schliesslich schlicht nicht möglich eine manuelle regelmässige Nachschmierung zu verwenden.

Zur Schmierung des Dieselmotors verwendete man handelsübliches Motorenöl. Dabei kamen durchaus Schmiermittel zur Anwendung, die man auch im Stras-senverkehr verwendete.

Diese mineralischen Öle waren dazu ausgelegt, dass sie schmierten, Verschmutzungen aufnahmen und eine ge-wisse kühlende Funktion aufnehmen konnten. Dadurch waren die Schmiermittel einer sehr hohen Belastung und auch einem Verschleiss unterworfen.

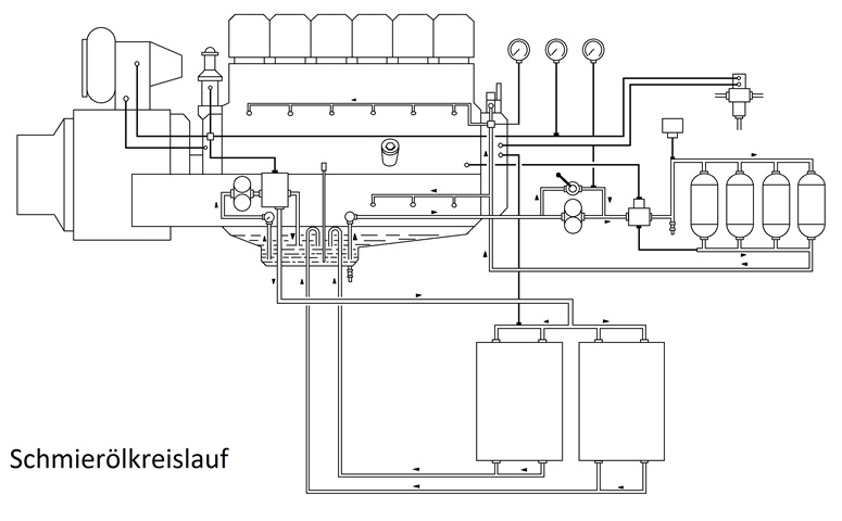
Das Schmiermittel wurde in einer Ölwanne, die unter dem Motor montiert wurde, gelagert. Dabei war in dieser Wanne durchaus ein Vorrat von mehreren Litern vorhanden.

Die Wanne diente dabei als Vorratsraum, in dem sich das Schmiermittel beruhigen konnte. Dadurch konnten sich im Öl befindliche Schwebeteile auf den Boden absenken. Somit fand bereits eine natürliche Reinigung des Schmiermittels statt.

Von der Ölwanne wurde das Schmiermittel von einer mechanisch direkt vom Dieselmotor angetriebenen Ölpumpe angezogen. So sorgte der laufende Motor selber dafür, dass die wichtige Schmierung funktionierte. Fiel die Ölpumpe aus und der Druck des Schmiermittels sank im Dieselmotor auf einen Wert unter 1 bar wurde der Motor automatisch abgestellt und konnte anschliessend erst wieder gestartet werden, wenn die Bedingungen erfüllt waren.

Das von der Ölpumpe geförderte Schmiermittel gelangte zu den Ölfiltern. Dort wurde das Öl von eventuell enthaltenen Schmutzteilen befreit. Diese Teile bestanden in erster Linie aus gelösten und mitgezogenen Ablagerungen im Verbrennungsraum. In der Folge wurde das Schmieröl im Laufe des Betriebes immer dunkler und nahm letztlich eine schwarze Farbe an. Daher konnte das Schmiermittel nicht unbegrenzt verwendet werden.

Trotz der Reinigung des Schmiermittels war es daher nötig, dieses Öl auszuwechseln. Dazu musste eine Schraube an der Wanne gelöst werden. Dadurch lief das Altöl mit samt den gelösten Schwebeteilen aus der Ölwanne und konnte entsorgt werden.

Diese im Unterhalt durchgeführte Arbeit wurde auch gleich dazu genutzt um die Ölfilter zu wechseln. Auch hier wurde ein Ersatz verwendet, denn eine Reinigung dieser Filter war nur mit sehr viel Aufwand möglich.

Die Schmierung von grossen Motoren hat jedoch ein Problem. Bei einem längeren Stillstand lief das Schmiermittel wegen der Schwerkraft in die Ölwanne und sammelte sich dort. Wur-de der Motor gestartet, lief dieser zuerst trocken, denn es brauchte eine kurze Zeit, bis die Schmierung einsetzte. In dieser kurzen Zeit entstehen somit die grössten Schäden an einem Verbrennungsmotor. Daher musste man verhindern, dass diese Situation eintreten konnte.

Bei der Kontrolle vor dem Start des Motors musste das Personal zuerst den Ölstand kon-trollieren. Anschliessend wurde mit einer von Hand bedienten Vorschmierpumpe die Schmierung aktiviert.

Diese Vorschmierung dauerte bei jedem Motor immer etwas mehr als eine Minute und sie beförderte das Schmiermittel an die benötigten Stellen im Motor. Dabei wurde manuell analog zur automatischen Schmierung des Motors gearbeitet.

Dadurch konnte das Schmieröl, bevor der Dieselmotor gestartet wurde, seine Aufgabe wahrnehmen. Der Dieselmotor war somit beim Start automatisch sofort richtig geschmiert und musste die ersten Umdrehungen nicht im ungeschmierten Zustand ausführen. Bei kürzeren Pausen musste jedoch nicht manuell vorgeschmiert werden. Man konnte jetzt den Motor sofort starten. Besonders wichtig war das, wenn im Teillastbereich gearbeitet wurde.

Hatte das Schmieröl seine Aufgabe erledigt, tropfte es zusammen mit den gelösten Verschmutzungen durch die Hohlräume im Motor wieder in die darunter montierte Ölwanne. So war ein einfacher aber wirksamer Ölkreislauf entstanden. Wichtige Punkte waren dabei die Filter und die Ölpumpe, denn diese sorgte dafür, dass das Schmiermittel wieder an seinen Einsatzort gelangte und so die Aufgabe erneut wahrnehmen konnte.

Während dem Betrieb wurde das Motorenöl jedoch erhitzt und wurde dadurch immer dünnflüssiger. So war eine ausreichende Schmierung nicht mehr gesichert, da diese auf eine gewisse Viskosität des Schmiermittels ausgelegt wurde. War zudem noch zu wenig Schmiermittel vorhanden fiel die Schmierung aus. In der Folge stieg die Reibung im Dieselmotor an und es kam zu Schäden am Motor. Damit das nicht passierte, wurde das Motorenöl zusätzlich gekühlt.

Um das Schmieröl zu kühlen wurde eine weitere Ölpumpe eingebaut. Diese förderte das Schmiermittel direkt aus der Ölwanne zu einem Kühler, der von einem Ventilator belüftet wurde. Anschliessend wurde das Öl wieder in die Ölwanne geleitet, wo es sich mit dem restlichen Schmieröl vermischte. Auch diese Pumpe wurde von der Steuerung des Dieselmotors überwacht. Fiel der Druck in der Leitung unter ein bar, schaltete der Motor aus.

Da kaltes Schmieröl nicht gekühlt werden musste, war ein Thermostat vorhanden. Dieser schaltete die Ölpumpe des Kühlkreises erst zu, wenn das Schmiermittel eine Temperatur von 50°C überschritt. Reichte die Kühlung nicht aus, wurde zum Schutz der Motor abgestellt. Die Ölkühlung war somit auch zum Schutz des Dieselmotors vorhanden. Jedoch reichte deren Kühlung keineswegs um den Motor ausreichend zu kühlen.

Um den Dieselmotor und den Abgasturbolader ausreichend zu kühlen verwendete man normales Wasser, das überall leicht bezogen werden konnte. Dieses Wasser wurde jedoch nur mit einem Korro-sionsschutzmittel durchsetzt.

Es hatte somit im Gegensatz zu Strassenfahrzeugen kein Frostschutzmittel enthalten! Das war damals bei den Diesellokomotiven der Schweizerischen Bundes-bahnen SBB so üblich und war dem Umweltschutz zu verdanken.

Da die Kühlkreise der beiden Dieselmotoren getrennt waren, musste im Winter darauf geachtet werden, dass beide Motoren in regelmässigen Abständen eingeschaltet wurden.

Wurde das nicht gemacht, lief die Lokomotive bei längerer Arbeit mit Teillasten Gefahr, dass das Kühl-wasser im Motor gefrieren konnte. Durch die Aus-dehnung wurde der Zylinderblock gesprengt und der Motor erlitt einen schweren Schaden.

Daher hatte der Lokführer der Kühlung der Motoren eine grössere Beachtung zu schenken. Damit bei der im Freien abgestellten Lokomotive das Kühlwasser nicht einzufrieren drohte, war eine Vorheizanlage eingebaut worden. Diese hatte eine eigene Pumpe und einen elektrischen Heizkörper. Betrieben wurde diese Einrichtung mit 380 Volt Wechselstrom und Landesfrequenz. Daher wurde die Lokomotive an das Landesnetz angeschlossen.

Bei der Flüssigkeitskühlung der Dieselmotoren wurde jeweils ein Wassertank als Vorrat vorgesehen. Bei diesem Tank wurde auch die Anzeige für den Füllstand angebracht. Daher wurde frisches Kühlwasser hier eingefüllt. Sollte der Wasserstand in diesem Behälter zu gering sein, war die Kühlung nicht mehr gewährleistet. Daher wurde der Wasserstand kontrolliert. Bei zu geringem Vorrat stellte der Dieselmotor ab.

Vom Wassertank wurde das Kühlwasser durch einen Filter von der elektrisch angetriebenen Pumpe ange-zogen. Die Pumpe wurde automatisch gestartet, wenn der Dieselmotor seine Arbeit aufnahm und die Hilfsbetriebe mit Spannung versorgt wurden.

Es versteht sich, dass der Druck in der Zuleitung des Kühlwassers analog dem Schmiermittel überwacht wurde. Auch jetzt war der Motor bei unzureich-endem Wasser gefährdet.

Von der Pumpe wurde das Kühlwasser zum Diesel-motor und zum Abgasturbolader geführt und dort durch die Öffnungen im Gehäuse gepresst. Dabei wur-de das Wasser an den heissen Wänden der Bauteile stark erwärmt und somit das Metall gekühlt.

Das Prinzip konnte mit dem Wasser im Kessel einer Dampflokomotive, das an der Feuerbüchse erwärmt wurde, verglichen werden. Wobei hier das erhitzte Wasser jedoch gekühlt werden musste. Wir haben schliesslich keine Dampferzeugung, sondern eine Kühlung.

Danach gelangte das im Motor und im Abgasturbolader erhitzte Kühlwasser durch eine weitere Leitung zu den Kühlern. In den Kühlern wurde das Wasser schliesslich wieder abgekühlt und es konnte anschliessend wieder in den Tank fliessen. Damit schnell die gewünschte Betriebstemperatur erreicht wurde, konnte eine Umgehungsleitung zugeschaltet werden. Dadurch erwärmte sich das Wasser schneller, da es keine Kühlung gab.

Dank der elektrischen Pumpe für das Kühlwasser konnte der Kreislauf nach dem Abstellen des Dieselmotors noch während ein bis zwei Minuten aufrechterhalten werden. Dadurch blieb die Kühlung auch erhalten, wenn der Motor abgestellt war. Die Pumpe musste durch den Lokführer abgestellt werden. So war gesichert, dass es keine Schäden durch einen Hitzestau im Motor gab. Die Dauer der nachträglichen Kühlung war daher im Handbuch geregelt worden.

Das Kühlwasser wurde, wie schon erwähnt, zuerst über eine Umgehungsleitung an den beiden Kühlern vorbeigeführt. So war gesichert, dass das Kühlwasser schnell die optimale Betriebstemperatur ereichte. Diese lag dabei unter 70°C. Dabei wurden die Kühler bei deutlich geringeren Werten mehr oder weniger zugeschaltet. Diese Lösung erlaubte eine schnelle Erwärmung des Dieselmotors. Erst über diesem Wert wurde die Leitung abgesperrt und das Wasser durch die Kühler geleitet.

Damit im Winter kein kalter Motor gestartet werden musste, benutzte man das Kühlwasser dazu, dass der Dieselmotor erwärmt wurde. Dank dieser Massnahme, konnte der Kaltstart verhindert werden und es bestand keine Gefahr, dass das Kühlwasser einfrieren konnte. Daher waren die Lokomotiven bei Stilllagern an eine Vorheizanlage angeschlossen. Nebeneffekt war, dass auch der Führerstand geheizt wurde.

Diese Kühler konnten das Wasser auf natürliche Weise jedoch nicht ausreichend kühlen. Damit deren Leistung verbessert werden konnte, mussten die Kühler künstlich belüftet werden. Dazu war ein von den Hilfsbetrieben angetriebener Ventilator vorhanden. Die von der Temperatur geregelte Steuerung des Ventilators ermöglichte, dass die Temperatur des Kühlwassers in engen Grenzen gehalten werden konnte.

Der Ventilator lief so lange das Kühlwasser eine Temperatur unter 70°C hatte, mit 600 Umdrehungen pro Minute. Somit erfolgte jetzt nur die Ventilation der Ölkühler, die so die Temperatur des Schmieröls unter 68°C halten konnten. Diese erste Stufe der Ventilation war also bereits aktiv, wenn der Dieselmotor gestartet wurde, jedoch erfolgte ganz am Anfang keine Kühlung, da das Kühlwasser der Umgehungsleitung zugeführt wurde.

Überstieg eine der Temperaturen der beiden zu kühlenden Flüssigkeiten diese Werte, wurde die Drehzahl des Ventilators auf 1 300 Umdrehungen pro Minute erhöht.

Nun erfolgte sowohl die Kühlung des Schmiermittels als auch die Kühlung des Kühlwassers. Diese Stufe blieb so lange erhalten, bis dass Kühlwasser eine Tem-peratur von 80°C hatte. Beim Schmiermittel reichte diese Stufe aus, um die Kühlung zu sichern.

Erst bei einer Temperatur des Kühlwassers von mehr als 80°C wurde die dritte Stufe des Ventilators aktiviert. Die maximale Tourenzahl wurde nun auf 1 670 Umdrehungen pro Minute erhöht.

Somit war jedoch die maximale Kühlleistung des Ventilators erreicht und das Kühlwasser musste nun abgekühlt werden. Erfolgte dies jedoch nicht, wurde der Dieselmotor automatisch abgestellt, wenn die Temperatur des Kühlwassers 90°C überstieg.

Damit haben wir den Dieselmotor der Lokomotive mit der Kühlung bereits aufgebaut. Beim zweiten Motor handelte man analog dazu.

Es lohnt sich, wenn wir zum Abschluss einen Blick auf die Waage werfen. Dabei interessiert natürlich jetzt nur das Gewicht des Dieselmotors. Dieser erreichte zusammen mit den Betriebsmitteln ein Gewicht von 7 800 Kilogramm. Damit mussten insgesamt fast 16 Tonnen für die beiden Dieselmotoren vorgesehen werden.

Alleine für die Schmiermittel und das Kühlwasser der beiden Dieselmotoren musste man bei der ganzen Lokomotive 1 200 Kilogramm vorsehen. Von diesem Gewicht gingen rund 800 Kilogramm für das Kühlwasser weg. Grosse Motoren, wie sie hier verbaut wurden, benötigen daher auch grosse Kühlleistungen. Das war nur mit den entsprechenden Vorräten beim Schmiermittel und bei der Kühlflüssigkeit zu verwirklichen.

Letzte

Navigation durch das Thema

Nächste
Home SBB - Lokomotiven BLS - Lokomotiven Kontakt

Copyright 2019 by Bruno Lämmli Lupfig: Alle Rechte vorbehalten